CARREGANDO...
Imprimir
Locação Disponível

Escritório para alugar, no PIC (Polo da Indústria Criativa) na Vila Leopoldina, em São Paulo, Vila Leopoldina, 2.500m²

2.500m² área útil 2.500m² área total
Aluguel: R$ 120.000 / mensal
Pacote de locação (taxas inclusas) R$ 37.492

PCREA2500

Escritório - Comercial

Rua Senador Joaquim Ribeiro do Valle, Vila Leopoldina, São Paulo / SP

PIC (Polo da Indústria Criativa) na Vila Leopoldina

Sobre o imóvel

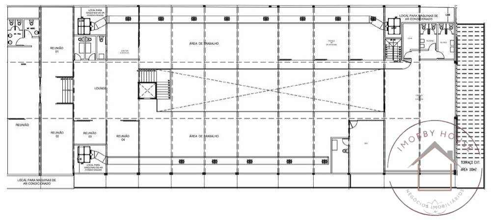
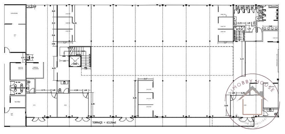
Escritórios de altíssimo padrão (disponibilidade imediata) para locação, no empreendimento PIC (Polo da Indústria Criativa) na Vila Leopoldina, São Paulo.

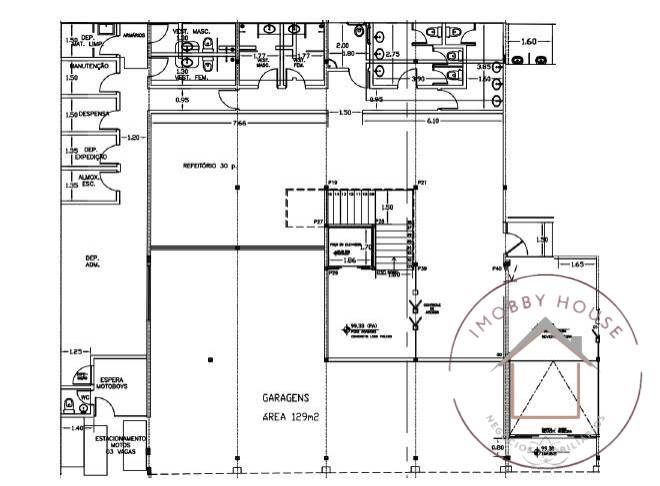
O imóvel possui 2.500m² (área total disponível para locação monousuário), além das vagas de garagem externas e áreas comuns.
 
O empreendimento está localizado em uma das regiões mais procuradas por agências de publicidade, produtoras de imagem e som, estúdios e outros agentes do mercado de comunicação e marketing, startups e afins, devido ao baixo custo de ocupação e facilidade de acesso.


O imóvel possuí fácil acesso por trem, ônibus e bicicleta (corredor e ciclovia da Av. Dr. Gastão Vidigal), com fácil acesso às Marginais e principais rodovias que rondam a capital. Está localizado a:
 

  • 120m da Av. Doutor Gastão Vidigal
  • 750m da Estação Imperatriz Leopoldina
  • 1,1 Km da Estação Ceasa
  • 1,4 Km da Marginal Tietê
  • 3,2 Km da Rodovia Anhanguera
  • 3,8 Km do Shopping Villa Lobos
  • 4,5 KM da Rodovia Castelo Branco
  • 4,5 KM da Rodovia dos Bandeirantes


FACILITIES:
A região conta com infraestrutura de restaurantes, bancos, farmácias e demais serviços; e está próximo ao Shopping Villa Lobos (12 minutos para ir, 6 minutos para voltar).
 
IMÓVEL:
O imóvel possui área útil interna de aproximadamente 2.500m² (fora as vagas de garagem e áreas comuns), com as seguintes características:
 

  • Galpão antigo totalmente restaurado, com recepção e áreas de convivência no piso térreo, e 2 andares de mezaninos metálicos com piso de steel deck e pé direito duplo no vão central, com blocos de escritórios nas laterais, e divisórias em vidro;
  • Finíssimo acabamento;
  • Iluminação natural através de lanternins na parte mais alta do telhado, com esquadrias novas;
  • Ar-condicionado central;
  • Entrada privativa de veículos e pedestres, com portas automatizadas, que permite a entrada de caminhões para entrega de equipamentos;
  • Entrada de pedestres também pela Av. Mofarrej, 619;
  • Instalação elétrica e hidráulica;
  • 29 banheiros com louças e metais;
  • Infraestrutura de dados e telefonia já instalados;
  • Garagem: 12 vagas internas + área demarcada para motos e bicicletas;
  • Portaria blindada com sistema de segurança 24 horas (telefone, portões de entrada e sistema de CFTV), com banheiro interno;
  • Cabine primária com transformador de 750KvA em 380V, e cabine secundária para 220V;
  • Grupo gerador com capacidade para 500KvA;
  • Estrutura completa de equipamentos de combate a incêndio;
  • O Imóvel possui AVCB e Habite-se.

 
Locação: R$120.000,00/mês
IPTU + Rateio de Despesas Gerais Comuns (condomínio): R$37.492,16/m²
 


Solicite maiores informações e fotos pelo WhatsApp.
(Agende já a sua visita, atendimento todos os dias com horário marcado)


• Você conta com uma assessoria imobiliária completa para você resolver toda a burocracia de documentos e contratos e comprar com SEGURANÇA. Você também tem assessoria para seu financiamento, fazemos a pesquisa e te ajudamos na escolha das melhores taxas e condições com os bancos para você.
• Aqui você encontra milhares de ofertas para encontrar o imóvel que mais combina com seu estilo de vida. 
• Precisando VENDER RÁPIDO SEU IMÓVEL? Fale com a gente!  ANUNCIE seu imóvel! É fácil, rápido e gratuito!
• Imóveis em todas as regiões de São Paulo e Vale do Paraíba, novos e usados, na planta e prontos para morar! Consulte-nos para investir, Morar ou trabalhar!
 

Vamos negociar?

Para ter mais informações sobre este imóvel, entre em contato conosco

Imobby House

(11) 99379-3355 adm@imobbyhouse.com.br
Fale conosco agora mesmo
R$ 120.000,00 Escritório para alugar, no PIC (Polo da Indústria Criativa) na Vila Leopoldina, em São Paulo, Vila Leopoldina, 2.500m²
WhatsApp